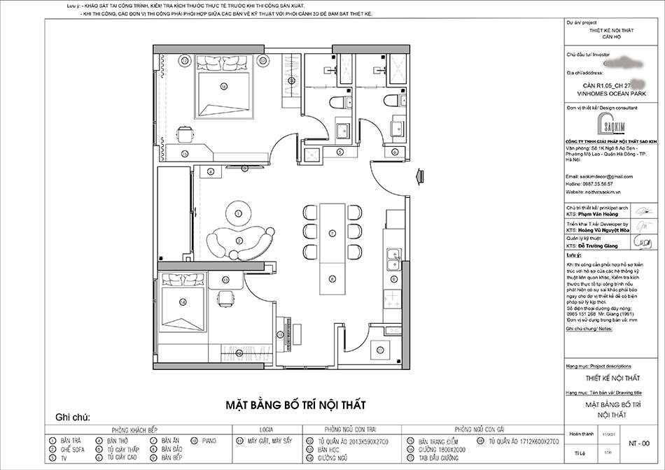
Diện tích: 65m2 – 2 phòng ngủ +1
Địa chỉ: Kiêu Kỵ, Dương Xá, Đa Tốn, huyện Gia Lâm, thành phố Hà Nội, Việt Nam
Đơn vị thi công: Công ty TNHH giải pháp nội thất Sao Kim
Nội thất Vinhomes Ocean Park 65m2-2 phòng ngủ +1 được kết hợp giữa phong cách Japandi và Bauhaus, với tông màu trắng be và bê tông sáng làm chủ đạo, cùng với đường phào chỉ sáng tạo, độc lạ căn hộ sở hữu vẻ đẹp yên bình thanh lịch tựa như một quý cô “trang nhã” cuốn hút lòng người.





Sự kết hợp giữa phong cách Japandi và Bauhaus tạo không gian giao thoa giữa văn hóa phương Đông và phương Tây mang đến vẻ đẹp tựa như một quý cô trang nhã, cuốn hút. Sau ghế sofa là đường chỉ tạo vòm vách tường khoét âm tạo điểm nhấn ấn tượng.

Khu + 1 trong căn hộ được hô biến thành không gian học đàn cho 2 bé. Đèn trang trí xinh xắn hình chiếc lá vừa tô điểm cho không gian vừa bổ sung ánh sáng cho khu vực này.
--> Xem thêm: Thiết kế nội thất Nhật Bản cho căn hộ studio Vinhomes Ocean Park

Gam màu trắng be và bê tông sáng là màu được lựa chọn cho thiết kế nội thất Vinhomes Ocean Park cho con trai và con gái chủ đầu tư. Gam màu tươi sáng mang đến cảm giác nhẹ nhàng, tinh tế và cũng vô cùng cuốn hút cho không gian.

Thiết kế nội thất Vinhomes Ocaen Park được kết hợp giữa phong cách Japandi và Bauhaus. Trong phong cách Japandi sự đơn giản và công năng của nội thất luôn được hướng đến. Với phong cách Bauhaus “đẹp luôn đi đôi với công năng” chính là đặc trưng cơ bản của phong cách này. Vì vậy, thiết kế nội thất chung cư Vinhomes Ocaen Park đặt công năng lên hàng đầu và cũng không quên trau chuốt vẻ đẹp của không gian thiết kế.

Các thành viên trong căn hộ không sử dụng đến kệ tivi nên trong quá trình thiết kế kệ tivi được loại bỏ. Thay vào đó, chủ đầu tư muốn sử dụng giá đứng treo tivi để có thể chỉnh vị trí, độ cao thấp của tivi như mong muốn. Ban thờ đứng mang thiết kế, màu sắc độc đáo theo phong cách mà thiết kế chung cư Vinhomes Ocean Park đang hướng đến.
--> Xem thêm: Thiết kế nội thất màu đen chung cư Vinhomes Ocean Park mang vẻ đẹp huyền bí

Thiết kế nội thất chung cư Vinhomes Ocean Park này thuộc phân khu Ruby vì vậy đã được bàn giao đầy đủ thiết bị vệ sinh, tủ bếp, hút mùi, trần sàn, và tủ quần áo phòng ngủ master. Tuy nhiên, toàn bộ công năng hệ tủ bếp được thay đổi theo nhu cầu sử dụng của thành viên trong gia đình và màu sắc thay đổi phù hợp với phong cách thiết kế.

Bộ bàn ghế ăn 6 ghế được sử dụng, thiết kế ghế ăn chắc chắn, lạ mắt mang đến hơi thở mới cho căn bếp.

Bàn ăn và bàn đảo đặt liền nhau mang đến sự tiện lợi cho quá trình sử dụng. Một chiếc đèn thả bàn ăn phù hợp với phong cách được sử dụng tô điểm cho vẻ đẹp khu bàn ăn.

Sự kết hợp giữa gam màu trắng be và bê tông sáng mang đến vẻ đẹp cuốn hút cho căn bếp khiến ai cung thích thú khi được nấu ăn trong không gian này. Toàn bộ hệ tủ bếp được thay đổi công năng, thiết kế để phù hợp nhu cầu sử dụng cũng như phong cách, màu sắc của thiết kế nội thất Vinhomes Ocean Park.

Gạch ốp tường màu trắng được sử dụng rất dễ lau chùi, vệ sinh. Điểm nhấn màu sắc cho căn bếp đến từ gạch ốp tạo hình vòm màu đỏ nâu. Đèn led chạy dưới tủ bếp mang đến vẻ đẹp lung linh, bừng sáng.

Tủ giày thấp bố trí gần cửa ra vào thuận tiện cho sinh hoạt hàng ngày. Phía trên tủ giày được bố trí 1 chiếc tủ treo để cất mũ, ô hay một số đồ cần thiết. Bên kia cũng được bố trí thêm tủ để các thành viên trong nhà cất trữ đồ cần thiết.

Thiết kế nội thất phòng ngủ master Vinhomes Ocean Park cho con gái kết hợp phong cách Japandi và Bauhaus màu trắng be và bê tông sáng mang đến vẻ đẹp tinh té. Phòng ngủ gây ấn tượng với phần vách và một phần trần đầu giường khung phào ốp chất liệu thạch cao.
Hai bên đầu giường bố trí tab và đèn ngủ trả trần xinh xắn. Theo yêu cầu của gia chủ, tủ quần áo tận dụng lại tủ được bàn giao từ chủ đầu tư.

Ánh sáng tự nhiên hắt vào qua khung cửa kính xuyên qua lớp rèm mỏng mang vẻ đẹp thơ mộng cho phòng ngủ.

Bục đọc sách thiết kế chạy dọc cửa sổ để con gái ngồi đọc sách và ngắm cảnh bên ngoài thành phố.
--> Xem thêm:Thiết kế nội thất Vinhomes Smart City vẻ đẹp sang trọng trong phong cách hiện đại

Bàn trang điểm treo được bố trí phía cuối giường ngủ, chiếc bàn cũng có thể được tận dụng thành bàn làm việc.


Thiết kế nội thất Vinhomes Ocean Park vẫn sử dụng gam màu trắng be và bê tông sáng cho phòng ngủ bé trai. Tuy nhiên gam màu đen và xám được thêm vào không gian để tạo sự cá tính, mạnh mẽ hơn cho không gian phòng ngủ.

--> Xem thêm: Mẫu thiết kế căn hộ 48m2 Vinhomes Ocean Park mang phong cách Color Block

Phòng ngủ bé trai bố trí giường ngủ sát của sổ với phần giường chạy kịch tường mang đến công năng sử dụng tối ưu và đảm bảo mặt thẩm mỹ cho không gian.

Phòng ngủ bé trai được bố trí bàn học và kệ sách giúp góc học tập luôn gọn gàng, ngăn nắp.

Nhờ cách bố trí khoa học dù có diện tích khá nhỏ nhưng phong ngủ bé trai vẫn có khoảng trống rộng rãi để đi lại, vui chơi.

Toàn bộ thiết bị vệ sinh của hai phòng tắm được giữ nguyên theo chủ đầu tư bàn giao, chỉ có phần gạch ốp tường sàn được thay đổi cho phù hợp với phong cách và màu sắc toàn bộ thiết kế nội thất Vinhomes Ocean Park.




Logia được trồng nhiều cây xanh, bàn treo và ghế bar được bố trí tại đây để hai chị em có thể ra đây thư giãn, ngắm cảnh.
DANH MỤC
TIN MỚI NHẤT